027/2008
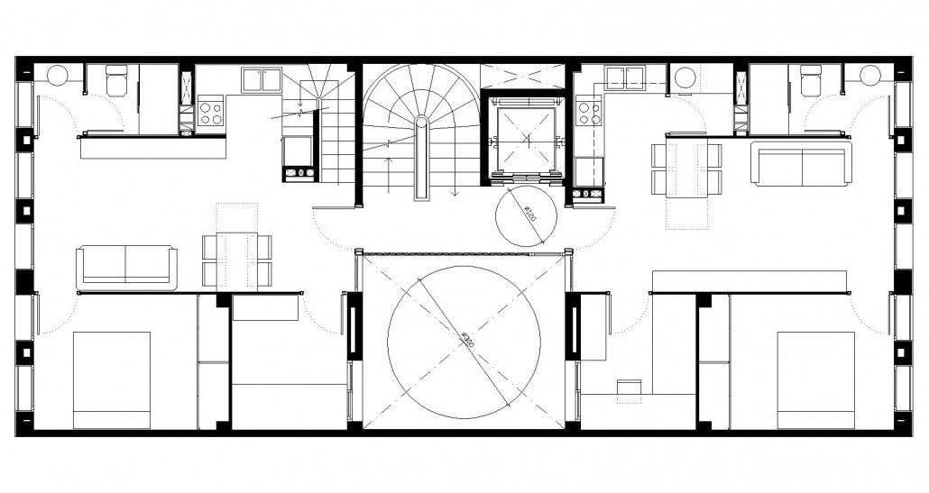
edificio de viviendas plurifamiliares en calle espirall 12 y 14.
7 viviendas y un local comercial en cada bloque.
Superficie total: 1018 m².
vilafranca del penedés
enero 2008
027/2008
edificio de viviendas plurifamiliares en calle espirall 12 y 14.
7 viviendas y un local comercial en cada bloque.
Superficie total: 1018 m².
vilafranca del penedés
enero 2008

002/2006